Esprit在上海的亞洲總部辦公空間是由深圳裝飾公司的設計團隊創建的,將其崇高的精神帶入了人們的視野。對于專注于設計的時尚生活品牌,設計團隊以當代語言詮釋豐富的設計理念。
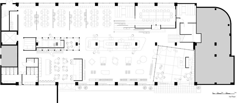
兩層的核心空間被設計為開放式溝通和互動的聚集地,而外窗附近的明亮區域是員工工作的地方,并仔細考慮了隱私需求。



總之,整體環境的材料選擇和設計表達突出了現代簡約的品牌特征。深圳裝飾公司通過玩轉色彩和視覺效果展示了當今時代的新品牌精神。
在傳遞青春,活潑,樸素,鮮明和創意的形象風格。它的辦公環境設計還遵循“簡單的空間和簡單的規則”,以創建簡單干凈的內部空間。具有不同高度和材料形狀的各種空間塊可引導人們進入開放空間,例如廚房,會議室,展示墻或中央封閉的私密空間。整體環境以柔和明亮的色彩呈現概念以及積極樂觀的時尚態度。
中性色用作色調。深圳裝飾公司突出了接待區,裝飾有藍色水磨石和樓梯空間,粉紅色的石膏。此外,所有可移動的座椅和靠墊均裝飾有優雅或鮮艷的色彩。